
VI.11.8, VI.11.9 and VI.11.10 Pompeii. Casa del Labirinto or House of the Labyrinth. Room Plan courtesy of Annette Haug.
The room numbers are those referred to on the pompeiiinpictures pages for VI.11.8, VI.11.9 and VI.11.10.
This plan is to help you accurately locate the rooms shown in the photographs of this very large house.
Please be aware that the room numbers shown may differ from any other plans or records both published and unpublished.

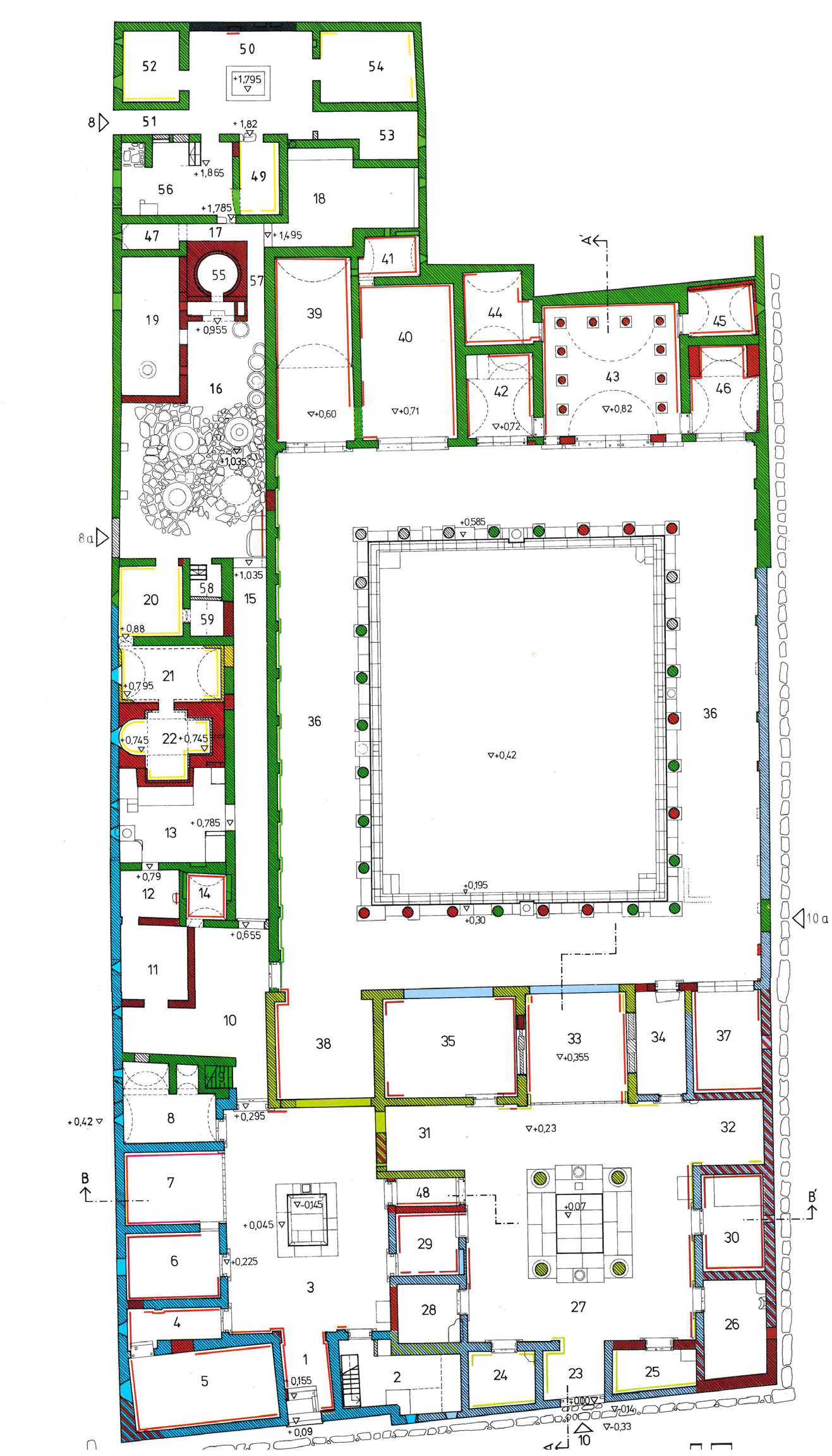
VI.11.8, VI.11.9 and VI.11.10 Pompeii. Casa del Labirinto or House of the Labyrinth. Room Plan by Strocka (1991).
See Strocka V.M. 1991, Casa del Labirinto (VI 11, 8-10), Häuser in Pompeji, 4, München.
See PAP E-Journal 07: 06.08.2025 - La rioccupazione nell'Insula meridionalis di Pompei dopo il 79 d.C. Riflessioni a margine dell'inconscio archeologico, Tav. 2: Planimetria della Casa del Labirinto (Strocka 1991).