
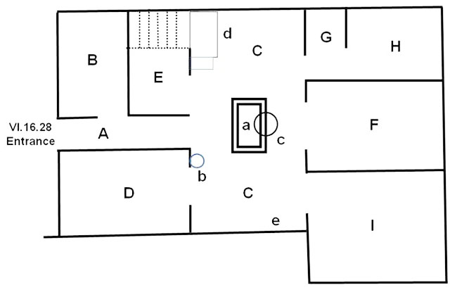
A: Fauces
B: Small rustic room, with a floor of earth
C: Atrium
D: Cubiculum
E: Room with stairs (d)
F: Tablinum
G: Small rustic room or cupboard leading to room H
H: Room behind room G
I : Oecus
a: Impluvium
b: Cistern mouth
c: Round marble table
d: Wooden staircase
e: Low hearth
The room numbers are those referred to on the pompeiiinpictures pages for the house at VI.16.28.
This plan is to help you accurately locate the rooms shown in the photographs of this house.
The plan and the room descriptions are based on those used in the NdS 1908.
See Notizie degli Scavi di Antichità, 1908, p. 271-9, fig. 1.
Please be aware that the room numbers shown may differ from any other plans or records both published and unpublished.